ONGOING & ON PLANNING PROJECTS


On Going - Project 1
HULU PENGELI RESIDENTIAL PROJECT
PROJECT FELDA TENGGAROH, SECOND GENERATION.
LAND SIZE 4000 SQ FT
TOTAL CONSTRUCTION CONTRACT 380 UNITS. (RM138,000
TO RM180,000.00)
BUILD-UP 950 SQ FT TO 1,150 SQ FT.
GDV RM 52,440,000.00
COMPLETION BY 2028.










On Going Submission - Project 2
LOT 4526 MUKIM PEDAH, DAERAH JERANTUT, PAHANG.
LAND SIZE AS 5.22 ACRES, TENURE FREE HOLD.
LANDED PROPERTY.
TOTAL 47 UNITS HOUSING DEVELOPMENT.
BANGALOW, TOTAL 2 UNITS
SEMI -D SINGLE STOREY, TOTAL 20 UNITS.
SUPER LINK HOUSE, TOTAL 25 UNITS.
TOTAL GDV RM20,520,000.00.
PRICE FROM 400,000.00 - RM 640,000.00.
EXPECTING START LAUNCHING IN 2026, COMPLETION IN 2028.








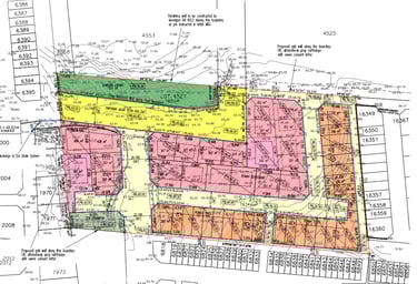
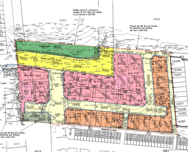
On Going Submission - Project 3
REMBAU LANDED DEVELOPMENT
LOT 1625, DAERAH REMBAU, NEGERI SEMBILAN DARUL.
LAND SIZE AS 5.39 ACRES, TENURE FREE HOLD.
LANDED PROPERTY.
TOTAL 72 UNITS MIX DEVELOPMENT.
DOUBLE STOREY SHOP 20' X 72', TOTAL 12 UNITS.
TOWN HOUSE 20' X 80', TOTAL 22 UNITS.
LINK HOUSE 20' X 72', TOTAL 27 UNITS.
LINK HOUSE 20' X 80', TOTAL 11 UNITS.
TOTAL GDV RM22,900,500.00.
PRICE FROM 380,000.00 - RM 480,000.00.
COMPLETION BY EARLY 2027.
46% SOLD.


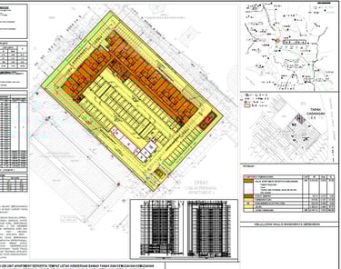
On Going Submission - Project 4
NILAI PERDANA INTEGRATED DEVELOPMENT
LOT 19845 (FASA 2) NILAI PERDANA MUKIM LABU, DAERAH SEREMBAN.
LAND SIZE AS 1.53 ACRES, TENURE 99 YEARS.
SINGLE BLOCK, 24 STOREYS.
290 UNITS APARTMENT.
CONSUME OF 800 SQ FT -194 UNITS & 1000 SQ FT - 96 UNITS.
3 BEDROOMS & 2 BATHROOM.
TOTAL GDV RM87,920,000.00.
PRICE FROM RM 285,000.00 -RM 358,000.00.
EXPECTING START LAUNCHING IN 2025, COMPLETION IN 2028.








On Going Planning - Project 5
SEREMBAN 2 INTEGRATED DEVELOPMENT
LOT 50472 MUKIM KAPAR, DAERAH KLANG, SELANGOR.
LAND SIZE AS 77.13 ACRES, TENURE FREE HOLD.
MIX DEVELOPMENT.
TOTAL GDV RM 110,000,000.00.
EXPECTING START LAUNCHING IN 2026, COMPLETION IN 2032.








On Going Planning - Project 6
COOP CITY DESARU JOHOR
PTB 13841BANDAR PENAWAR TANJUNG SURAT, DAERAH KOTA TINGGI, JOHOR DARUL TA'ZIM.
LAND SIZE AS 59.3 ACRES, TENURE 99 YEARS.
3 ZON.
MIX DEVELOPMENT.
TOTAL GDV RM539,000,000.00.
EXPECTING START LAUNCHING IN 2025, COMPLETION IN 2030.








On Going Planning - Project 7
PTB 1377 BANDAR PENAWAR TANJUNG SURAT, DAERAH KOTA TINGGI, JOHOR DARUL TA'ZIM.
LAND SIZE AS 50.64 ACRES, TENURE 99 YEARS.
4 ZON.
MIX DEVELOPMENT.
TOTAL GDV RM350,000,000.00.
EXPECTING START LAUNCHING IN 2025, COMPLETION IN 2030.






Contacts
TEL: +6 03-807 11188
HP: +6 012-22 68684
EMAIL: yapjunhern@yahoo.com
Address
D-G-42 & D-1-42, BLOK-D KOMPLEKS SURIA KINRARA PERSIARAN KINRARA, SEKSYEN 3 TAMAN KINRARA, 47100 PUCHONG SELANGOR
